zadzwoń
wyślij wiadomość
Jakub Pasich

doradca ds. nieruchomości

Telefon:
zaproponuj swoją cenę
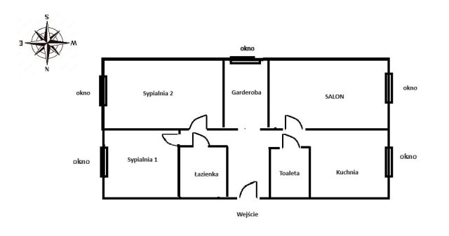
3 pokoje + Garderoba | 75m2 | Kochanowskiego
Kielce - Barwinek, Starowapiennikowa
498 800 zł
6 741 zł/m²

Nr oferty: 3778

Liczba pokoi

3

Pow. całk.

74 m²

Piętro

7

Liczba pięter

8

Rynek

wtórny

Rodzaj zabudowy

Rok budowy

brak danych

Nr oferty:

3778

Opis

Podstawowe parametry:

  • Powierzchnia: 74,9 m²

  • Liczba pokoi: 3 (osobne i ustawne) + garderoba

  • Piętro: 7 z 8 (budynek z dwiema windami z 1982 r.)

  • Lokalizacja: Kielce, os. Kochanowskiego / Barwinek, ul. Wapiennikowa

  • Status: Pełna własność z Księgą Wieczystą

  • Dodatki: Piwnica, dwie windy w budynku, okna plastikowe

Kluczowe zalety:

  • Metraż z potencjałem: Blisko 75 m² to przestrzeń, która daje ogromne możliwości. Obecny układ z trzema osobnymi pokojami i dedykowaną garderobą zapewnia komfort każdemu z domowników.

  • Wszystko w zasięgu spaceru: Lokalizacja przy ul. Wapiennikowej to dostęp do najlepszej infrastruktury w mieście. W promieniu 250 m znajdują się: Biedronka, Rossmann, Hebe, siłownia oraz przychodnia.

  • Cisza i widoki: Położenie na 7. piętrze gwarantuje więcej prywatności, lepsze doświetlenie pomieszczeń oraz ładną panoramę okolicy, przy jednoczesnym zachowaniu ciszy z dala od bezpośredniego zgiełku ulicznego.

  • Stan techniczny: Instalacje elektryczna oraz wodno-kanalizacyjna są sprawne. Mieszkanie wymaga jedynie odświeżenia lub własnej aranżacji wnętrz, co pozwala na wykończenie go zgodnie z własnym gustem.

  • Rozdzielna łazienka i WC: Klasyczny, niezwykle funkcjonalny układ przy większej liczbie mieszkańców.

  • Bezpieczna transakcja: Oferta bezpośrednia od właściciela – brak prowizji dla pośredników (oszczędność rzędu kilkunastu tysięcy złotych).


Cena do negocjacji. Zapraszam osoby zainteresowane do bezpośredniego kontaktu i obejrzenia mieszkania.

Opis oferty ma charakter informacyjny i nie stanowi oferty w rozumieniu art. 66 i nast. K.C

Jakub Pasich

doradca ds. nieruchomości

zadaj pytanie
zaproponuj swoją cenę
Jakub Pasich

doradca ds. nieruchomości

Telefon:
zaproponuj swoją cenę

Zaawansowane parametry

Skontaktuj się